

Download Lyncombe Hill Fields map PDF

Download Circular Map PDF
For contrast we also enclose part of a historical map of Lyncombe and Widcombe dated 1799 and known as the J. Charlton map. This was originally produced for the tenants of the Hugh Sexey estate (see the History section of this website). Almost the whole of this hilltop area was farmland at that time, the one significant development being Devonshire Buildings.

Five fields totalling around 22 acres of Lyncombe Hill Farm have been shaded orange, these all being leased at that time to a Richard Atwood. These include two fields on which Beechen Cliff school and its playing fields now sit (numbered A232 and 234). The surviving FLHF fields are marked with a blue border. The present East, South and West Fields can be clearly seen (numbers A229, 230 and 238). Today’s Inner Field (number 231) was in 1799 owned by the Magdalen Hospital in Holloway. The site of the current North Field and allotments (Tu227) was leased to a Mr. Tucker. Most of the future site of ‘the Poets’ was leased to a John Dallimore (Dw218, 219, 220 and 225), and the future site of Alexandra Park was leased to the Colthursts (Cf226).
The source of this information is “The J.Charlton Map of Lyncombe and Widcombe 1799”, published for the Survey of Old Bath in 1998.

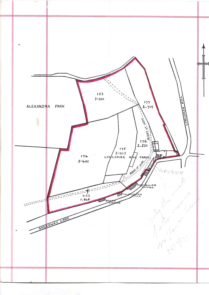
We also include here a part of the Ordnance Survey map of Bath dated 1885-6. This shows the farm buildings that were situated just inside what is now the South Gate from Greenway Lane into the Fields. (See also the section of the website). We also include two maps showing the extent of the farm in 1919 and 1936.
1919

1936

